Maison en pierre à rafraichir | Propriété rare avec grand te
Saint-Paul-de-Vence 06570
0
Honoraires à la charge du vendeur.
Les charges de location sont prévisionnelles mensuelles avec régularisation annuelle.
# Exclusivité # SOUS COMPROMIS
Découvrez cette maison en pierre de taille des années 1950, un bien rare situé à seulement 900 mètres du village historique de Saint-Paul-de-Vence.
Nichée sur une parcelle exceptionnelle de plus de 6200 m², cette propriété offre un fort potentiel de rénovation et d'agrandissement.
Caractéristiques principales :
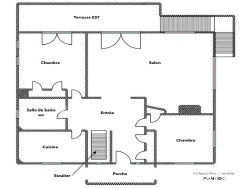
- Surface habitable de 114 m² répartie sur deux niveaux, offrant de beaux volumes à réaménager selon vos envies. - Terrain de plus de 6200 m² : Un cadre naturel sans vis-à-vis, idéal pour profiter du calme et de la tranquillité. - Vue latérale sur le village de Saint-Paul-de-Vence, un cadre enchanteur qui ajoute au charme de cette propriété. - Garage spacieux de 40 m² situé en rez-de-jardin, parfait pour le stationnement ou pour être transformé en espace supplémentaire.
Agencement de la maison :
- Rez-de-chaussée : Un grand hall d'entrée qui dessert deux chambres, une cuisine, une salle de bains avec toilettes, ainsi qu'un salon lumineux avec cheminée pour de chaleureux moments en famille. - Rez-de-jardin : Une troisième chambre, une buanderie, une salle de bains avec toilettes, et un accès direct au garage de 40 m².
Opportunités et potentiel : - Toiture refaite et chaudière neuve, un atout pour démarrer vos travaux de rénovation dans de bonnes conditions. - Agrandissement possible, vous offrant l'opportunité de créer la maison de vos rêves tout en bénéficiant d'un emplacement rare et recherché à Saint-Paul-de-Vence.
Emplacement privilégié :
Cette maison bénéficie d'un emplacement idéal, à proximité du célèbre village de Saint-Paul-de-Vence tout en étant entourée de nature. La taille du terrain et l'absence de vis-à-vis en font un véritable havre de paix.
Ne manquez pas cette opportunité unique d'acquérir une maison de caractère à rénover, avec un fort potentiel d'agrandissement, dans l'un des secteurs les plus prisés de la région.
Contactez-nous dès maintenant pour plus d'informations et pour organiser une visite.
Les informations sur les risques auxquels ce bien est exposé sont disponibles sur le site Géorisques http://georisques.gouv.fr
Honoraires à la charge du vendeur. Classe énergie D, Classe climat D Montant estimé des dépenses annuelles d'énergie pour un usage standard : entre 2028.00 et 2744.00 sur les années 2021, 2022 et 2023 (abonnements compris). Les informations sur les risques auxquels ce bien est exposé sont disponibles sur le site Géorisques : georisques.gouv.fr. . Les informations sur les risques auxquels ce bien est exposé sont disponibles sur le site Géorisques http://georisques.gouv.fr
114 m²
5 746 €
28.60 m²
6288 m²
4
3
2
2
09/01/2026
1952
Est
1
2
Oui
Oui
Consommations énergétiques
Logement économe
242
Logement énergivore (kWhEP/m2/an)
Émissions de gaz à effet de serre
Faible émission de GES
38
Forte émission de GES(kgeqCO2/m2/an)
Contact L'AGENCE PRIVÉE
Contacter gratuitement à l'aide du formulaire ci-dessous.